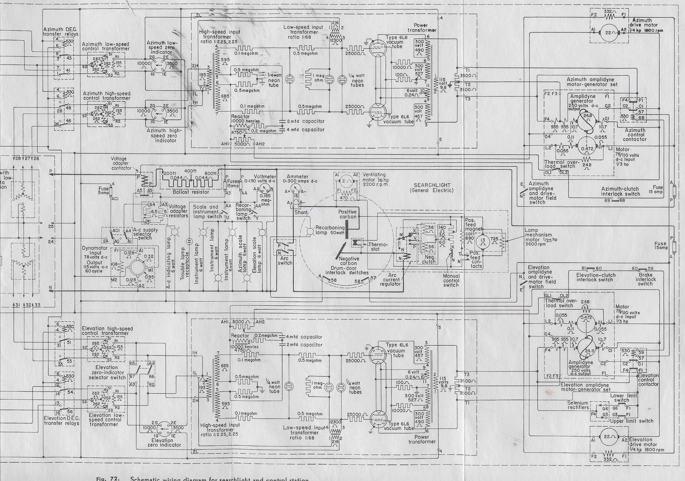
1942-A  GENERAL ELECTRIC SEARCHLIGHT SCHEMATIC